Feuerwehrhaus

Feuerwehrhaus

Hier sind wir zu Hause

Dreh- und Angelpunkt für alle Übung- und Einsatzaktivitäten ist unser Feuerwehrhaus. Dort befinden sich unsere Fahrzeuge, technischen Geräte und die persönliche Schutzausrüstung.

Das Feuerwehrhaus liegt im Gewerbegebiet „Max-Eyth-Straße“ direkt neben den Sportanlagen. Von hier aus können die Wohn- und die Industriegebiete schnell über die neue Ortsdurchfahrt erreicht werden. Die Anfahrt zum Feuerwehrhauses im Alarmfall ist ohne größere Probleme möglich. Für die Einsatzkräfte steht ein Alarmparkplatz hinter dem Haus zur Verfügung. Das Ausrücken der Einsatzfahrzeuge erfolgt über den Alarmhof auf die Max-Eyth-Straße, so dass sich die Wege der ankommenden und abrückenden Einsatzkräfte nicht kreuzen. Erbaut wurde das Feuerwehrhaus in den Jahren 2015 und 2016.

Was lange währt wird endlich gut, die Gemeinde Oberboihingen konnte am 16. September 2016 ihr neues Feuerwehrhaus einweihen und es zur Nutzung an die Freiwillige Feuerwehr übergeben. In 18 Monaten Bauzeit war es gelungen, ein Feuerwehrhaus zu bauen, bei dem Architektur und Funktionalität eine Einheit bilden. In den neuen Räumen finden die Einsatzabteilung und die Jugendfeuerwehr beste Bedingungen für einen optimalen Übungs- und Einsatzdienst, und auch die Altersabteilung fühlt sich bei den kameradschaftlichen Veranstaltungen im neuen Haus wohl.

Nach über 50 Jahren am alten Standort in der Nürtingerstraße bot das alte Feuerwehrhaus nicht genügend Platz für Mannschaft, Fahrzeuge und Geräte und es konnte die heutigen Anforderungen einer modernen Feuerwehr nicht mehr erfüllen. Da die Erweiterungsmöglichkeiten nicht gegeben waren und ein Um- und Ausbau dadurch ausgeschlossen war, entschied sich die Gemeinde schon vor Jahren den Standort in der Nürtingerstraße aufzugeben und einen neuen Standort zu suchen. Mit der Neugestaltung der Ortsmitte und dem Zukauf eines Grundstücks waren die Grundsteine für diesen Neubau in der Max-Eyth-Straße gelegt.

Aus der Raumbedarfsplanung der Feuerwehr heraus wurde die kleine Lösung „Feuerwehrhaus“ mit 5 Fahrzeugstellplätzen, Werkstätten, Sozial- und Verwaltungstrakt verwirklicht, die der Feuerwehr jetzt wesentlich verbesserte Bedingungen für den Dienstbetrieb bietet und auch die Option für eine mögliche Erweiterung bietet.

Das neue Feuerwehrhaus ist technisch auf dem neuesten Stand und verfügt über 5 Fahrzeugboxen mit angrenzenden Werkstätten und Lagerräumen, sowie über einen separaten „Verwaltungstrakt“, der Umkleiden, Funkzentrale, Büros, Unterrichtssaal und Räume für die Jugendfeuerwehr beinhaltet. Mit einem großzügigen Alarmparkplatz für den Einsatz, einem Waschplatz mit Ölabscheider und einem großen Übungs- und Alarmhof sind die beengten Örtlichkeiten des alten Standorts beendet, Einsätze und Übungen nach den heutigen Standards abgewickelt und durchgeführt werden.

IMPRESSIONEN NEUES FEUERWEHRHAUS

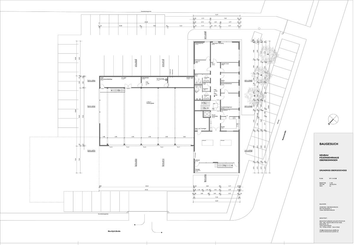
Grundriss von unserem neuen Feuerwehrhaus

Die Grundrisse zeigen die Raumaufteilung sowie die Nutzung der beiden Geschosse des Hauses.

Unser altes Feuerwehrhaus

Die Erweiterung der Gerätschaften und des Fahrzeugbestandes machte 1964 einen Neubau notwendig, die alte Kelter, die der Feuerwehr bis dahin als Gerätehaus gedient hatte, wurde abgerissen und am selben Standort ein neues Feuerwehrhaus durch Architekt Friedrich Weiler geplant und gebaut. Während der Bauzeit musste die Feuerwehr notgedrungen umziehen und wurde behelfsmäßig im Bauhof der Gemeinde in der Klosterstrasse untergebracht. Gottseidank war diese Notlösung nicht von langer Dauer, schon 1 Jahr später konnte die Feuerwehr ihr neues Domizil beziehen.

Mit einer Fahrzeughalle mit 3 Fahrzeugstellplätzen, Haken für die persönliche Schutzausrüstung, Werkstatt, Sanitärräume, Lagerräume, Schlauchwaschraum, Besprechungsräume und Versammlungsraum war es zur damaligen Zeit eines der modernsten Feuerwehrhäuser im Umkreis.

Mit dem Einzug ins neue Haus übernahm die Feuerwehr Oberboihingen im Rahmen des Katastrophenschutzes ein LF16-TS vom Bund. Die alte mechanische Holzleiter wurde 1970 durch eine neuere AL 18 ersetzt, 1973 wurde ein Gerätesatz zur Hilfeleistung beschafft und in die Werkstatt die Funkzentrale eingebaut. 1974 erweiterte ein gebrauchter Ford Transit, der wahlweise mit Tragkraftspritze oder Gerätesatz beladen werden konnte, den Fuhrpark. Nur 9 Jahre nach Bezug des neuen Feuerwehrhauses war ersichtlich, dass auch der Neubau schon an den Grenzen angekommen war, größere Fahrzeuge, neue Gerätschäften, höherer Personalstand zwangen die Feuerwehr zur Improvisation. Beispielsweise wurden in einer Fahrzeugbox die AL 18, der Ford Transit, die Haken für die Schutzausrüstung von 10 Kameraden sowie diverse, nicht verlastete Geräte untergebracht.

Spätestens 1981 wurde mit der Modernisierung des Fahrzeugparks deutlich, dass kein Platz mehr vorhanden war und eine Lösung in Form einer Erweiterung oder eines neuerlichen Standortwechsels gefunden werden musste. Durch die Gründung der Jugendfeuerwehr und die Neubeschaffung des Mannschaftstransportwagens wurde mit dem Anbau der vierten Fahrzeugbox eine vorübergehende Lösung geschaffen, aber die Notwendigkeit für eine ganzheitliche Lösung an einem anderen Standort war nicht mehr wegzudiskutieren.

Seit Mitte der 80ziger Jahre wurden verschiedene Standorte und Lösungsvarianten zwischen Feuerwehr und Gemeindeverwaltung besprochen und wieder verworfen. Durch Improvisation und Umbaumaßnahmen konnten die 2005 und 2011 beschafften Fahrzeuge im Feuerwehrhaus untergebracht werden, aber die AL 18 und einige weitere Geräte wurden in eine Scheune ausgelagert und die Mannschaft ist mit ihrer persönlichen Schutzausrüstung auf Fahrzeughalle und Untergeschoss verteilt.

Copyright © 2026 Freiwillige Feuerwehr Oberboihingen